Riverbank CA Homepage
Search

Riverbank Regional Recycled Water Project

Addendum to the Riverbank Regional Recycled Water Project Initial Study/Mitigated Negative Declaration posted here.

For full copy, click here.

Addendum to the Riverbank Regional Recycled Water Project 4-17-25 News Flash

Para la traducción en español, por favor presione aquí.

The City of Riverbank Regional Recycled Water Project (RRRWP) is envisioned as a program for the production and use of recycled water in southeastern San Joaquin County. The project would capture and reuse treated wastewater from the Riverbank Wastewater Treatment Plant (WWTP) to offset water used for agricultural needs. There is a significant cone of depression in the Eastern San Joaquin Subbasin located east of Stockton that has led to the overall decline of groundwater elevation in the subbasin. The RRRWP would create a source of high-quality irrigation water that could contribute to greater water balance in the subbasin by replacing some of the groundwater that would otherwise be used for irrigation.

The proposed project is expected to involve two phases.

• Phase I: Upgrade the existing WWTP with new secondary and tertiary treatment and disinfection facilities sized to accommodate 2.29 million gallons per day (mgd) average dry weather flow (ADWF), and construction of a 900,000-gallon recycled water storage tank and approximately 0.65 miles of distribution piping to accommodate current flows of 1.6 mgd. Expected to produce approximately 1,800 acre-feet of recycled water per year

• Phase II: Reconfiguration of the existing percolation ponds to provide additional seasonal recycled water storage, construction of additional redundant tertiary treatment facilities to handle flows up to 4.6 mgd and allow maintenance and servicing of equipment at 2.29 mgd ADWF, and expansion of the distribution system to serve additional agricultural users in the South San Joaquin Irrigation District. Expected to produce an additional 700 acre-feet per year.

The Riverbank Regional Recycled Water Project (RRRWP) has been in development since April 2016 when the City Council asked City Staff to look into a recycled water project for the City’s WWTP. Below are past milestones of the project development.

• August 22, 2017 Council presentation of reconnaissance study with discussion of drivers for project including regulatory policy, capacity, and phasing

• October 10, 2017 Council authorization to submit applications for two planning grants to study recycled water

• August 25, 2020 Council presentation and input to draft recycled water studies/master plan analysis

• October 27, 2020 City Council presentation of recycled water study/master plan analysis and input

• June 8, 2021 Council meeting presenting the public review drafts of the recycled water planning studies/master plan reports

• September 14, 2021, Council presentation of the final reports for submittal to the State Water Resources Control Board.

• September 27, 2022, Regular Meeting of the City Council including review of overall project need, scope and schedule with Council input to potential project phasing

• December 13, 2022, City Council adoption of updated Sewer rates in order to fund the Riverbank Regional Recycled Water Project (RRRWP)

• December 31, 2022, City submitted an application for SWRCB SRF Funding in the amount of $25,000,000 in

• January 2023 City submitted a $50,000,000 grant application to CalOES to be submitted to the FEMA Building Resilient Infrastructure and Communities (BRIC) program

• June 2023 The City hired Brown and Caldwell to complete 30% design and the Basis of Design Report which was completed in April 2024, on time and under budget by $290,000.00.

• September 24, 2024 The City approved the 60% design change order with Brown and Caldwell to continue the development of the plans and specifications.

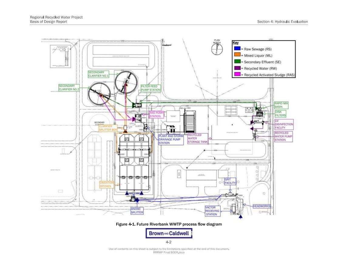
RRRWP Final BODR Plant Layout

Contact Us

  1. City of Riverbank
    6707 3rd Street
    Riverbank, CA 95367

    Phone: 209-869-7101
    Fax: 209-869-7126
    Contact Us

Hours

  1. Hours of Operation 
    Monday through Thursday.
    7:30 am to 5:30 pm

    Closed on Friday

  1. Riverbank CA Homepage

Government Websites by CivicPlus®
Arrow Left Arrow Right
Slideshow Left Arrow Slideshow Right Arrow